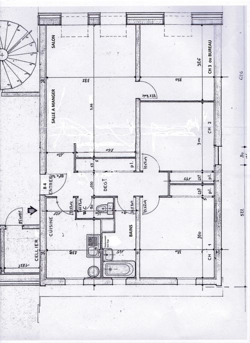
Descriptif appartement B4

Appartement F4 situé au 1er étage pour une surface de 79,21 m², 73,22 m²( carrez) très lumineux de part son exposition plein sud.

Ces vélux peuvent être soit occultants ou tamisants. Menuiseries neuves avec volets roulants isolants 2016. Porte d'entrée neuve 2016.

Appartement composé:

  • 1 salon salle à manger.
  • 2 chambres N°1 et N° 2 avec placards, une partie rayonnage et une autre penderie, portes coulissantes.
  • 1 autre chambre N° 3 ou bureau.
  • 1 cuisine.
  • 1 couloir avec un grand placard, une partie rayonnage et une autre penderie, portes coulissantes.
  • 1 salle de bain avec emplacement lave linge.
  • 1 wc. 
  • 1 cellier.
  • 1 hall d'entrée.
  • 1 emplacement de parking privatif ainsi que de nombreux emplacements visiteurs commun.
  • 1 local à vélo commun.
© Tous droits reservé | Création de site   ATELIER CARDE