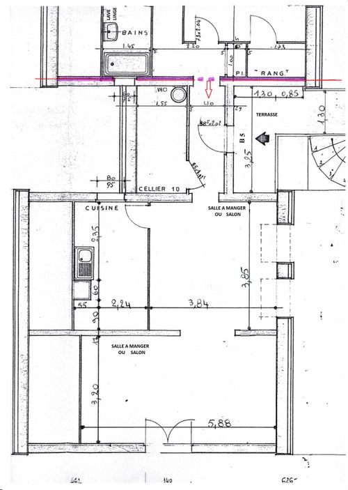
Descriptif appartement B5

Appartement F4 situé au 2ème et dernier étage pour une surface de 86,00 m² au sol, 71,47 m² (loi carrez) ainsi qu' une petite terrasse 5,32 m².

Très lumineux de part son exposition plein sud. Ces vélux peuvent être occultants ou tamisants l'été. Menuiseries neuves avec volets roulants isolants 201.

Appartement composé:

  • 1 salon.
  • 1 salle à manger.
  • 1 chambre N° 1 avec grand placard, une partie rayonnage et une autre penderie, portes coulissantes.
  • 1 chambre N° 2 avec placard.
  • 1 cuisine avec rangements.
  • 1 couloir avec petit placard.
  • 1 salle de bain avec emplacement lave linge.
  • 1 wc. 1 cellier.
  • 1 petite terrasse.
  • 1 emplacement de parking privatif ainsi que de nombreux emplacements visiteurs commun.
  • 1 local à vélo commun.
© Tous droits reservé | Création de site   ATELIER CARDE