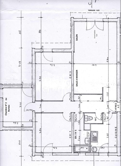
Descriptif appartement A2

Appartement F4 de plein pied pour une surface de 80 m², très lumineux de part son exposition plein sud.

Très belle terrasse plein sud. Menuiseries PVC double vitrage avec volets roulants alu isolants de 2015. Porte d'entrée 2016. Radiateur 2017.

Appartement composé:

  • 1 salon salle à manger. Surface 26 m²
  • 2 chambres. Surface 13,82 m², 11,20 m².
  • 1 bureau/ chambre. Surface 9 m²
  • 1 cuisine.
  • 1 couloir avec un grand placard, une partie rayonnage et une autre penderie, portes coulissantes.
  • 1 salle de bain avec emplacement lave linge.
  • 1 wc.
  • 1 cellier
  • 1 emplacement de parking privatif ainsi que de nombreux emplacements visiteurs commun.
  • 1 local à vélo commun.
© Tous droits reservé | Création de site   ATELIER CARDE