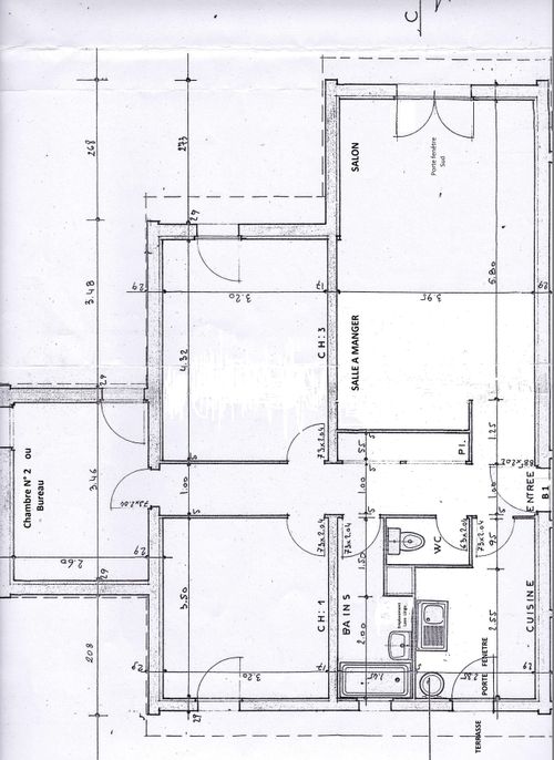
Descriptif appartement B1

Appartement F4 de plein pied, trés lumineux pour une surface de 80 m² loi carrez + terrasse .

Menuiseries neuves avec volets roulants isolants 2015. Porte d'entrée neuve 2016.

Appartement composé:

  • 1 salon salle à manger. Surface 26 m²
  • 2 chambres. Surface 13,82 m² 11,20 m²
  • 1 Bureau/ Chambre . Surface 9 m²
  • 1 cuisine.
  • 1 couloir avec un grand placard, une partie rayonnage et une autre penderie, portes coulissantes.
  • 1 salle de bain avec emplacement lave linge.
  • 1 wc.
  • 1 cellier.
  • 1 emplacement de parking privatif ainsi que de nombreux emplacements visiteurs commun.
  • 1 local à vélo commun.
© Tous droits reservé | Création de site   ATELIER CARDE